Fore Premier Properties
830.257.4000
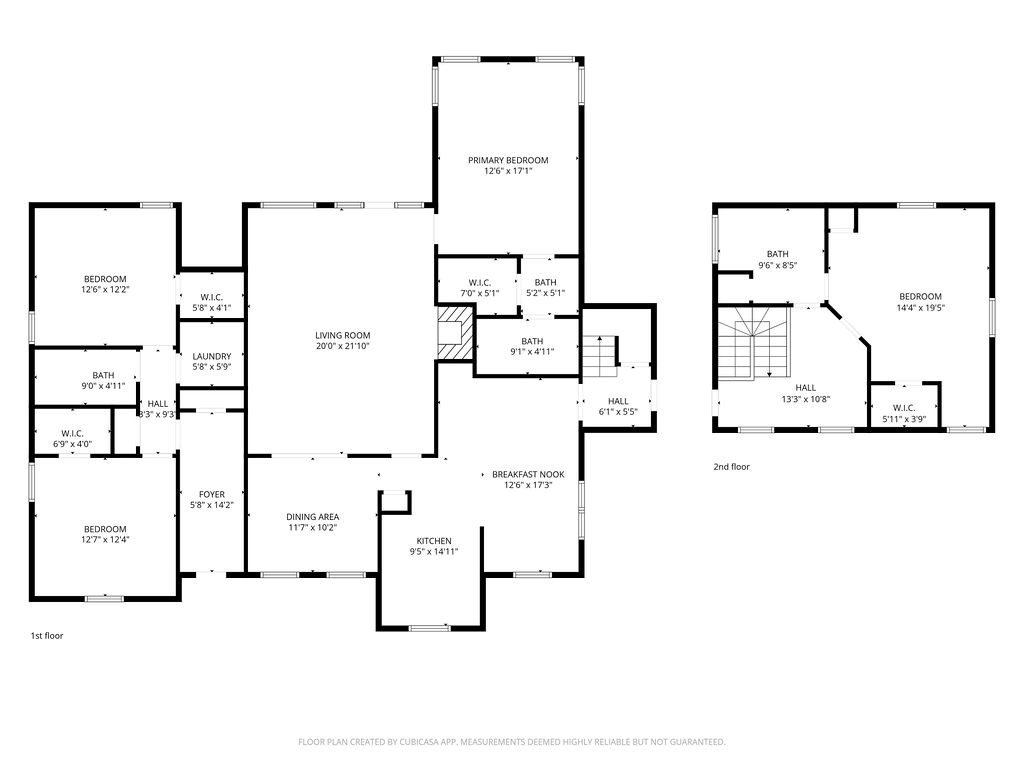
182 Shalako Dr Kerrville, Texas, 78028
Learn more about this propery
- $620,000