Fore Premier Properties
830.257.4000
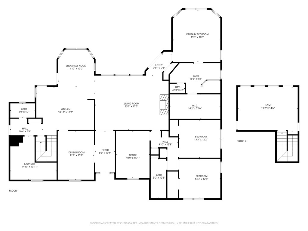
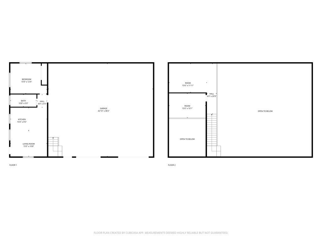
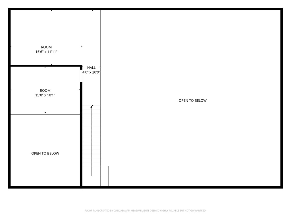
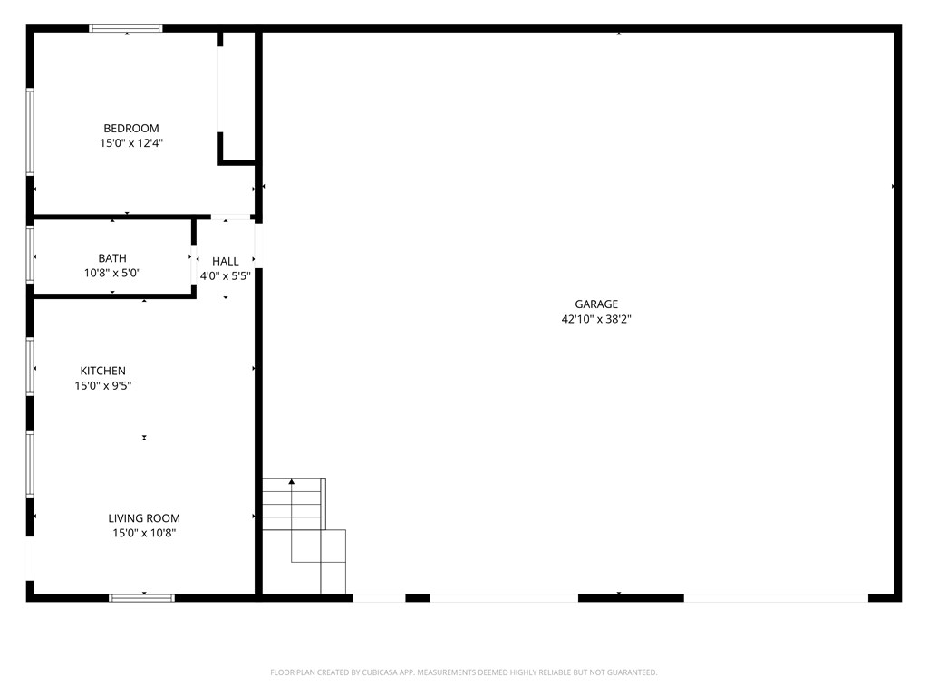
647 Funf Kinder Road Fredericksburg, Texas,
Learn more about this propery
- $1,717,223